Vente Maison Lisle-sur-Tarn
Vente Maison Lisle-sur-Tarn
Vente Maison Lisle-sur-Tarn
Vente Maison Lisle-sur-Tarn

Sommaire

  • Référence 86120516
  • Pièces 4 pièces
  • Surface 89.83 m²
  • Surface totale 104.83 m²
  • Type de chauffage Climatisation
  • Énergie de chauffage Electrique
  • Moyen de chauffage Individuel
  • Type d'eau chaude Chauffe-eau
  • Moyen d'eau chaude Individuelle
  • État Neuf
  • Étage Plain-pied

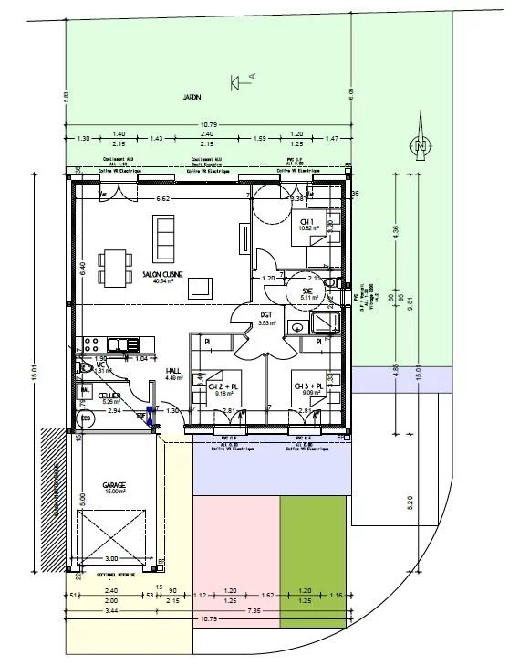
Surfaces

  • 1 Salle à manger/Cuisine 41 m²
  • 1 Hall d'entrée 4 m²
  • 1 Cellier 5 m²
  • 1 Toilettes 2 m²
  • 1 Garage 15 m²
  • 1 Chambre 11 m²
  • 1 Chambre 9 m²avec placard
  • 1 Salle de bains / toilettes 5 m²
  • 1 Chambre 9 m²avec placard
  • 1 Dégagement 4 m²

Prestations

  • Air conditionné
  • Double vitrage
  • Fenêtre aluminium
  • Fenêtre PVC
  • Fenêtres coulissantes
  • Internet
  • Volets roulants électriques
  • Éclairage extérieur

Proximités

  • Autoroute 6 minutes
  • Bus
  • Centre ville
  • Commerces
  • École primaire
  • Hôpital/clinique
  • Supermarché 4 kilomètres

Medias

Pas d'informations disponibles

Villa 4 pièces 89m2 Lisle sur Tarn

230 000 €

À Vendre : Maison Neuve RE2020 - 4 Pièces à Lisle-sur-Tarn
Villa 3

Prix : 230 000 €

Située à Lisle-sur-Tarn, à proximité du collège et des commerces, cette maison est idéale pour une famille en quête de praticité et de qualité de vie. Tout est pensé pour votre bien-être !

Maison conforme aux normes RE2020, garantissant une performance énergétique élevée, d'une surface habitable de 89m² :
un séjour avec cuisine ouverte de 40m², wc indépendant, cellier. Le coin nuit compte 3 chambres dont 2 avec placard et une salle d'eau avec douche et wc. Ainsi qu'un garage de 15m².

Équipements et prestations :
Chauffage par pompe à chaleur gainable, pour une gestion optimale de la température, complété par un chauffe-eau thermodynamique, pour un meilleur rendement énergétique.
Cuisine : un budget est alloué pour son aménagement, vous permettant de la personnaliser à votre goût

Côté extérieur :
Terrasse de 9m² carrelée
Jardin : 112 m², entièrement clôturé, idéal pour vos moments de détente en extérieur
Place de parking privatif

Livraison prévue : Septembre 2026

Mentions légales

  • 220 000 € Honoraires d'agence non inclus
  • 4.55% ( 10 000 € ) TTC Honoraires à la charge de l'acquéreur

Pas d'informations disponibles

Ce site est protégé par reCAPTCHA et les règles de confidentialité et les conditions d'utilisation de Google s'appliquent.